Villa in Vendita di 160mq - Capannori
-
- Italy
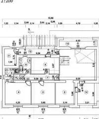
In fase di realizzazione villa singola disposta prevalentemente su unico piano e corredata da giardino su 4 lati, porticato d'ingresso, veranda, locale termico e p.auto. Risulta composta da luminoso soggiorno, cucina-pranzo, dis., 2 camere matrimoniali di cui una con servizio privato, camera doppia, bagno e rip. al p.terra; vano relax aperto su terrazza coperta, rip e soffitta al p.mansarda. Ottime rifiniture: possibilita' di personalizzare. - SC3465836 Altre caratteristiche: Superficie: 160mq Numero locali: 5 Posto auto scoperto
Contatta
Annunci correlati
-
Villa a Capannori 270mq
495 € Camere in Affitto 2022/05/16Villa singola di ca. 160mq disposta prevalentemente su unico piano e corredata da taverna di 110mq e...
-
Appartamento a Nola 90mq
130 € Camere in Affitto 2022/05/16Posizione: Nola, via Giacomo Imbroda, zona residenziale e commerciale della città. Tipologia: appart...
-
Pescara Vendita Appartamento - zona centro
325 € Camere in Affitto 2022/05/16Pescara - Viale della Riviera - proponiamo in vendita appartamento totalmente ristrutturato e arreda...


