Prato Vendita Casa indipendente
-
- Prato
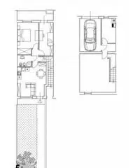
Prato Est, Pratilia appartamento di circa mq.115, posto al piano terra e piano interrato. Ingresso, soggiorno con angolo cottura, camera matrimoniale, camera singola, bagno con tunnel solare, balcone. Al piano interrato: cantina, lavanderia e autorimessa. Completa la proprieta resede ad uso esclusivo. Ristrutturazione in bio-edilizia ad alto rendimento energetico (cappotti termico-insonorizzanti in lana di legno mineralizzata). Classe energetica "A", riscaldamento a pannelli radianti con caldaia a condensazione, pannelli solari-termici, e impianto centralizzato di aspirazione polveri, tecnologie per il riciclaggio dellacqua piovana per lirrigazione, predisposizione aria condizionata e impianto di allarme. Euro 270.000 ap40b - SC3027674
Contatta
Annunci correlati
-
Villa di 5 locali in Vendita
579 € Case - Appartamenti in Vendita Roma 2022/06/12Villa bifamiliare trilivelli 300 mq ca fuori terra da ristrutturare composta da salone, 4 camere, 3 ...
-
Villetta a schiera capotesta
250 € Case - Appartamenti in Vendita Viterbo 2022/06/12Villetta a schiera capotesta zona Barbarano Romano a pochi metri da uno stupendo bosco e dal Parco M...
-
Vendita Villa a Lipari
400 € Case - Appartamenti in Vendita Messina 2022/06/12Vulcano, villetta mq.80 con ampio terrazzo sul mare di mq. 200, giardino circostante e spiaggetta ad...


