Vendita Edificabile residenziale in Via Fressuriello

100.000 €
    • Saviano, Italy

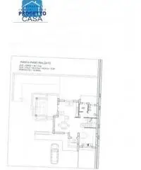
Proponiamo in vendita nel Comune di Saviano , Terreno edificabile residenziale mq 1000 , con concessione per edificare una Villa disposta su n° 4 livelli e più precisamente : piano seminterrato , garage mq 85 ; piano rialzato zona giorno mq 85 ; piano primo zona notte mq 85 ; piano secondo mansarda mq 40 . Possibilità di acquistare un altro lotto della stessa metratura adiacente . Per maggiori info in merito i recapiti telefonici da contattare sono i seguenti : 081 823 13 45 - 349 70 38 534 . Codice di Riferimento Agenzia: Terreno edif. resid. 1000 mq Saviano

Contatta


Nome: Agenzia
100.000 €
Invia messaggioSolo per utenti registrati Inserito il 2022/06/17
Aggiungi un commento pubblico...

Annunci correlati

  • Vendita Agricolo in Via Marra

    Vendita Agricolo in Via Marra

    80.000 € Terreni e rustici Sant'Anastasia 2022/06/17

    SANT'ANASTASIA VENDESI VIA MARRA APPEZZAMENTO DI TERRENO DI 5000 MQ FRONTE STRADA EURO 80.000,00 Cod...

  • Romani: Vendita Agricolo da 3800mq

    Romani: Vendita Agricolo da 3800mq

    60.000 € Terreni e rustici Sant'Anastasia 2022/06/17

    Rif: vendita appezzamento di terreno - Sant'anastasia,nei pressi di via Romani proponiamo in vendita...

  • Vendita Edificabile residenziale da 900mq

    Vendita Edificabile residenziale da 900mq

    20.000 € Terreni e rustici Sant'Anastasia 2022/06/17

    Via Castelluccio: proponiamo terreno agricolo di circa 1000 mq con rudere di circa 30 mq. Ideale per...