CAPANNONI MAGAZZINI - ARTIGIANALE - CERRETO GUIDI
-
- Cerreto Guidi, Firenze
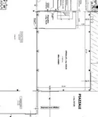
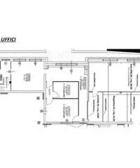
CAPANNONE ARTIGIANALE IN LOCALITA' BASSA - CERRETO GUIDI CON SEGUENTI METRATURE: UN TOTALE DI CIRCA 1850 MQ TRA MAGAZZINI, UFFICI, ACCESSORI; 3360 MQ CIRCA DI PIAZZALE SCOPERTO; 500 MQ CIRCA DI PARCHEGGIO AD UFFICI; CON ALTEZZA MEDIA DI MAGAZZINO DI 5,50 M E DI CIRCA 3.20 M DI MEDIA PER GLI UFFICI. IL MAGAZZINO SI TROVA DAVANTI ALLA ZONA INDUSTRIALE DI BASSA, A CIRCA 2 KM DALL'USCITA FI-PI-LI EMPOLI OVEST. STRUTTURA EDIFICATA NEGLI ANNI 90, VI SI ACCEDE DALLA STRADA PRINCIPALE CON DUE STRADE INTERNE, UNA DI PROPRIETA', L'ALTRA CON DIRITTO DI PASSO. IMPIANTO ELETTRICO A NORMA, IMPIANTI DI RISCALDAMENTO AUTONOMI, IMPIANTO FOTOVOLTAICO PER LA PRODUZIONE DI ENERGIA ELETTRICA DI POTENZA DI 10 KW, PER DETTO IMPIANTO OLTRE A NON PAGARE LA CORRENTE PER I CONSUMI INTERNI, RICEVE UN INCENTIVO PER LA VENDITA DELLA CORRENTE (PER ANCORA 18 ANNI); IMPIANTO DI ALLARME. ATTUALMENTE CIRCA 700 MQ DI FABBRICATO DELLA DITTA VENDITRICE SONO OCCUPATI DA CONDUTTORE, LA SOCIETA' VENDITRICE OCCUPA INVECE CIRCA 950 MQ DEL PROPRIO IMMOBILE ED E' ANCHE DISPONIBILE A RIMANERE ALL'INTERNO PAGANDO UN AFFITTO. APE ESENTE RIF. 5/0007 - (agg. 03/12/2016)
Contatta
Annunci correlati
-
CAPANNONI MAGAZZINI - ARTIGIANALE - CAMPI BISENZIO
250.000 € Uffici e Locali commerciali Campi Bisenzio (Firenze) 2022/07/04CAMPI BISENZIO , ZONA INTERNA ALLA BARBERINESE , AFFITTASI CAPANNONE ANGOLARE MQ 250 OLTRE SOPPALCO ...
-
CAPANNONI MAGAZZINI - ARTIGIANALE - BAGNO A RIPOLI
700.000 € Uffici e Locali commerciali Bagno a Ripoli (Firenze) 2022/07/04ANTELLA IMMOBILE ARTIGIANALE DI CIRCA 480MQ, CON DUE AMPI SPORTI SU STRADA, IN ZONA INDUSTRIALE ARTI...
-
Capannone in vendita a Scandicci
345.000 € Uffici e Locali commerciali Scandicci (Firenze) 2022/07/04Scandicci località Olmo vendesi in complesso industriale porzione di fabbricato ad uso produttivo pe...


