Deposito H2.40 - ristrutturato - uscita tangenziale
-
- Segrate, Milano
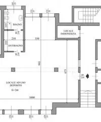
Vendesi al piano seminterrato di un edificio residenziale ampio locale ad uso deposito. Locale unico, finestrato su due lati opposti, molto luminoso, di altezza netta interna di 2,4 m, completamente ristrutturato con porta blindata, pareti tinteggiate con idropittura lavabile di color arancione e pavimento in piastrelle di gres porcellanato. Completo di bagno finestrato (lavabo, wc, bidet e piatto doccia), antibagno. Accessibile a partire sia dalla scala condominiale (1 rampa) sia dall'ampio corsello box con sei gradini (comodità carico/scarico). L'unita e' priva di impianto di riscaldamento. Si trova prossimo all'uscita della tangenziale est di Via Rubattino, a Redecesio di Segrate,
Contatta
Annunci correlati
-
DEPOSITO / BOX / MAGAZZINO in LEGNANO
48.000 € Uffici e Locali commerciali Legnano (Milano) 2022/07/04DEPOSITO / MAGAZZINO + AREA di Proprietà, in Legnano, vicino autostrada Mi-Va e le principali vie di...
-
Commerciale in vendita a Milano
21.500.000 € Uffici e Locali commerciali Milano (Milano) 2022/07/04A MILANO IN ZONA SEMICENTRALE, INTERO FABBRICATO DIREZIONE DESTINATO COMPLETAMENTE AD UFFICI PER MQ ...
-
Commerciale in vendita a Milano
21.500.000 € Uffici e Locali commerciali Milano (Milano) 2022/07/04A MILANO IN ZONA SEMICENTRALE, INTERO FABBRICATO DIREZIONE DESTINATO COMPLETAMENTE AD UFFICI PER MQ ...


