Casa indipendente in Vendita
- 
          - Prato
 
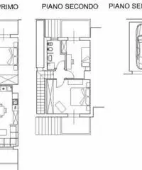
Prato Est, Pratilia appartamento piano primo e piano secondo mansardato, con ingresso indipendente. Ingresso, soggiorno con angolo cottura, camera, bagno, ripostiglio, 2 balconi. Al piano mansarda: camera, studio/cameretta, bagno, 2 terrazzi. Garage. Ristrutturazione in bio-edilizia ad alto rendimento energetico (cappotti termico-insonorizzanti in lana di legno mineralizzata). Classe energetica "B", riscaldamento a pannelli radianti con caldaia a condensazione, pannelli solari-termici, e impianto centralizzato di aspirazione polveri, tecnologie per il riciclaggio dellacqua piovana per lirrigazione, predisposizione aria condizionata e impianto di allarme. Euro 320.000 ap40a - SC3027301
Contatta
Annunci correlati
- 
    Prato Vendita Casa indipendente270 € Case - Appartamenti in Vendita Prato 2022/06/12Prato Est, Pratilia appartamento di circa mq.115, posto al piano terra e piano interrato. Ingresso, ... 
- 
    Villa di 5 locali in Vendita579 € Case - Appartamenti in Vendita Roma 2022/06/12Villa bifamiliare trilivelli 300 mq ca fuori terra da ristrutturare composta da salone, 4 camere, 3 ... 
- 
    Villetta a schiera capotesta250 € Case - Appartamenti in Vendita Viterbo 2022/06/12Villetta a schiera capotesta zona Barbarano Romano a pochi metri da uno stupendo bosco e dal Parco M... 
 
  
  
  
  
  
  
 

